- Descrierea produsului
 - 
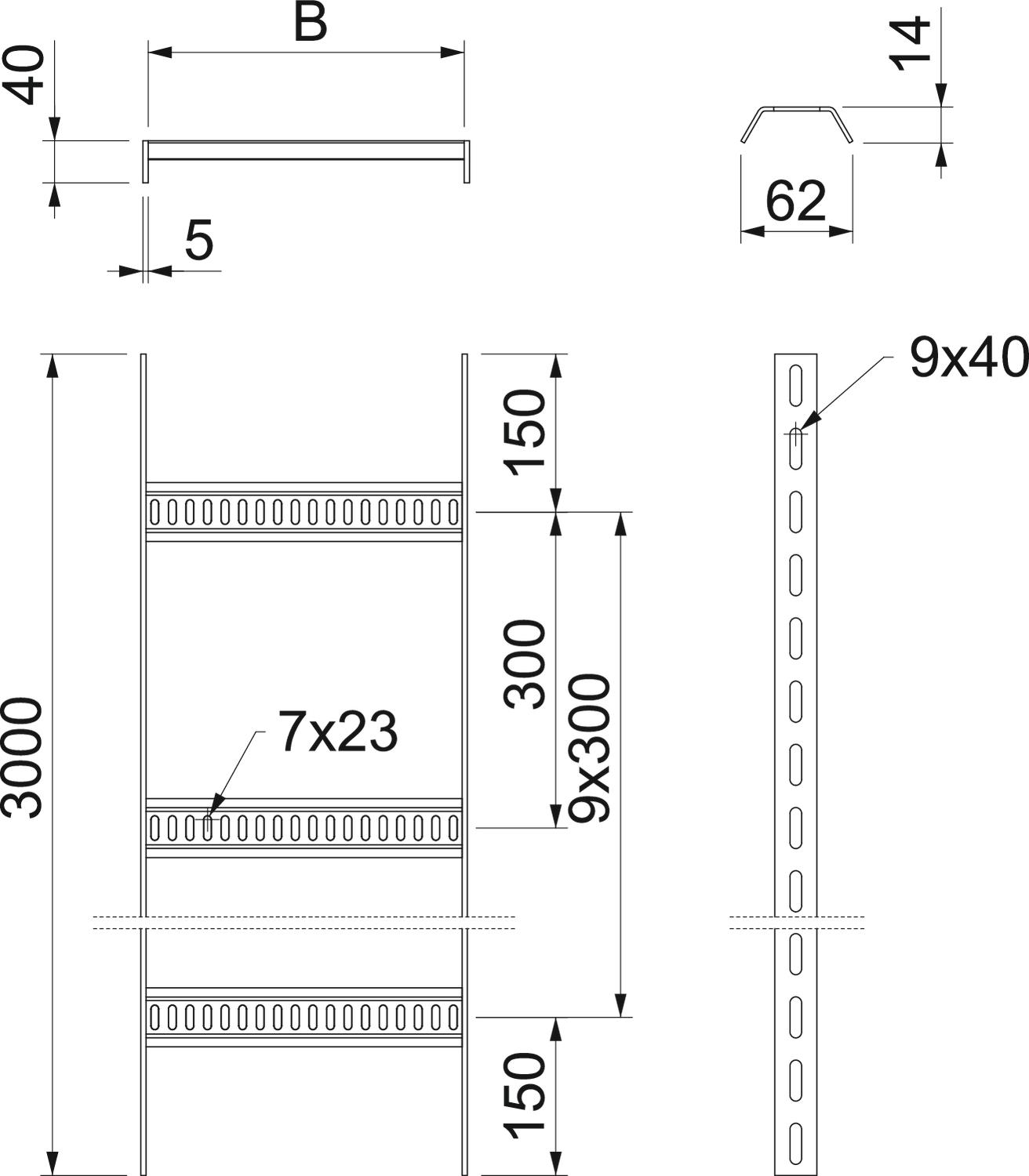
            Descrierea produsuluiPod de cabluri pentru construcţii navale cu perete lateral perforat având înălţimea laturii de 40 mm cu traverse trapezoidale perforate, sudate. Capacitate de încărcare testată în conformitate cu IEC împreună cu conectorul SLV
Podul de cabluri pentru constructii navale este disponibil la cerere și în variantă din otel inoxidabil. Vopsit în culorile RAL disponibile.
 - 
                
 - Date tehnice
 - 
        
Date tehnice
Amprenta CO2 (GWP) de la leagăn la poartă 8,7881 kg CO2e / 1 Metru Culoare zinc Dimensiune 40x310x3000 Dimensiune B 310 mm Distanţa dintre reazeme 1,5m 3 kN/m Distanţa dintre reazeme 2,0m 2 kN/m Distanţa dintre reazeme 2,5m 1 kN/m Distanţa dintre reazeme 3,0m 0,6 kN/m Distanţa dintre traverse 300 mm Execuţie lonjeron lateral profil plat Fixare traversă sudat grosimea lonjeronului 5 mm Înălţime 40 mm Lăţimea 300 mm Lungime 3000 mm Material Oţel Menținerea în funcțiune nu Oțel inoxidabil, băițuit nu Perforaţie laterală da Suprafaţă = zincat prin imersie Variantă pentru încărcări mari nu Variantă traverse Profil perforat Date tehnice
Diagramă de încărcare pod de cabluri tip SL62
                                    - 
                                                                                                    
                                                    Încărcare admisibilă a jgheabului/podului vertical de cabluri în kN/m, fără greutatea unui om
                                                                                             - 
                                                                                                    
                                                    Lăţime între reazeme în m
                                                                                             - 
                                                                                                    
                                                    Săgeată lonjeron, în mm la kN/m admişi
                                                                                             - 
                                                                                                    
                                                    Curbă de încărcare cu lăţimea jgheabului/podului de cabluri în mm
                                                                                             - 
                                                                                                    
                                                    Curba săgeţii lonjeronului în funcţie de distanţa între reazeme
                                                                                             - 
                                                                                                    
                                                    Schema de încărcare la procedeul de efectuare a probelor
                                                                                             
 - 
                                                                                                    
 - Toate tipurile
 - Materiale de descărcat
 - 
        Specificații SL 62 300 FT / 7097433 , 0.23MB , pdfDeclarație de conformitate UE SL 62 300 FT / 7097433 , 0.12MB , pdfDeclarație de performanță SL 62 300 FT / 7097433 , 0.55MB , pdfREACH Declarație de conformitate SL 62 300 FT / 7097433 , 0.12MB , pdfRoHS Declarație de conformitate SL 62 300 FT / 7097433 , 0.13MB , pdfInstrucțiuni de montaj General information on the mounting , 2.65MB , pdf
 
								
	
		
			
			
				
					România - Română
				
			
			
	
			
		
	
							
							
            
            
            
                    
                    
                    
                
                
                
                
                            Banda pretensionată FSK, gri